icon-arrow icon-close icon-cs icon-error icon-fb icon-insta icon-logo1 icon-logo2 icon-logo3-white icon-logo3 icon-marker icon-share icon-whatsup icon-youtube select__icon

Проект приюта в горах для охотников — проект компании KUB HOUSE

Общая площаль 189,4 м²
Автор концепции Алексей Олещенко
ГАП Наталья Захаревская
Ведущий архитектор Екатерина Цветкова
ГИП Максим Тормышев
Конструкторская группа Елизавета Серова, Артур Полквой
Дизайн-проект Артём Олещенко

Приют в горах для охотников расположен на активном рельефе, перепад высот вдоль здания 2,7 м. С юга от участка проходит р. Кяфар. Приют в горах одноэтажный с антресолью, Х-образное в плане. Стилистическая и конструктивная схема — А-фрейм, здание которое по внешнему виду напоминает букву А. Фасады выполнены с витражами на 2 уровня здания, для достижения максимальной освещённости помещений. Для помещений кухни и душевой в несущем каркасе предусмотрен обсадной короб для окна.

Силовой каркас, создающий пространство внутренних помещений, из панелей CLT. По силуэту многоугольный, с более пологой частью в уровне антресоли, для создания комфортной высоты и формы потолка. Для создания А-силуэта здания — стропильная система из доски. Общая высота здания 8,8 м, высота внутри здания 5,93 м. Отделка интерьеров из натуральных и износостойких материалов. Мебель индивидуального изготовления из влагостойкой фанеры.

189,4 м² Площадь дома
228,5 м² Площадь застройки
155,9 м² Полезная площадь
1105 м3 Строительный объём
1 этаж

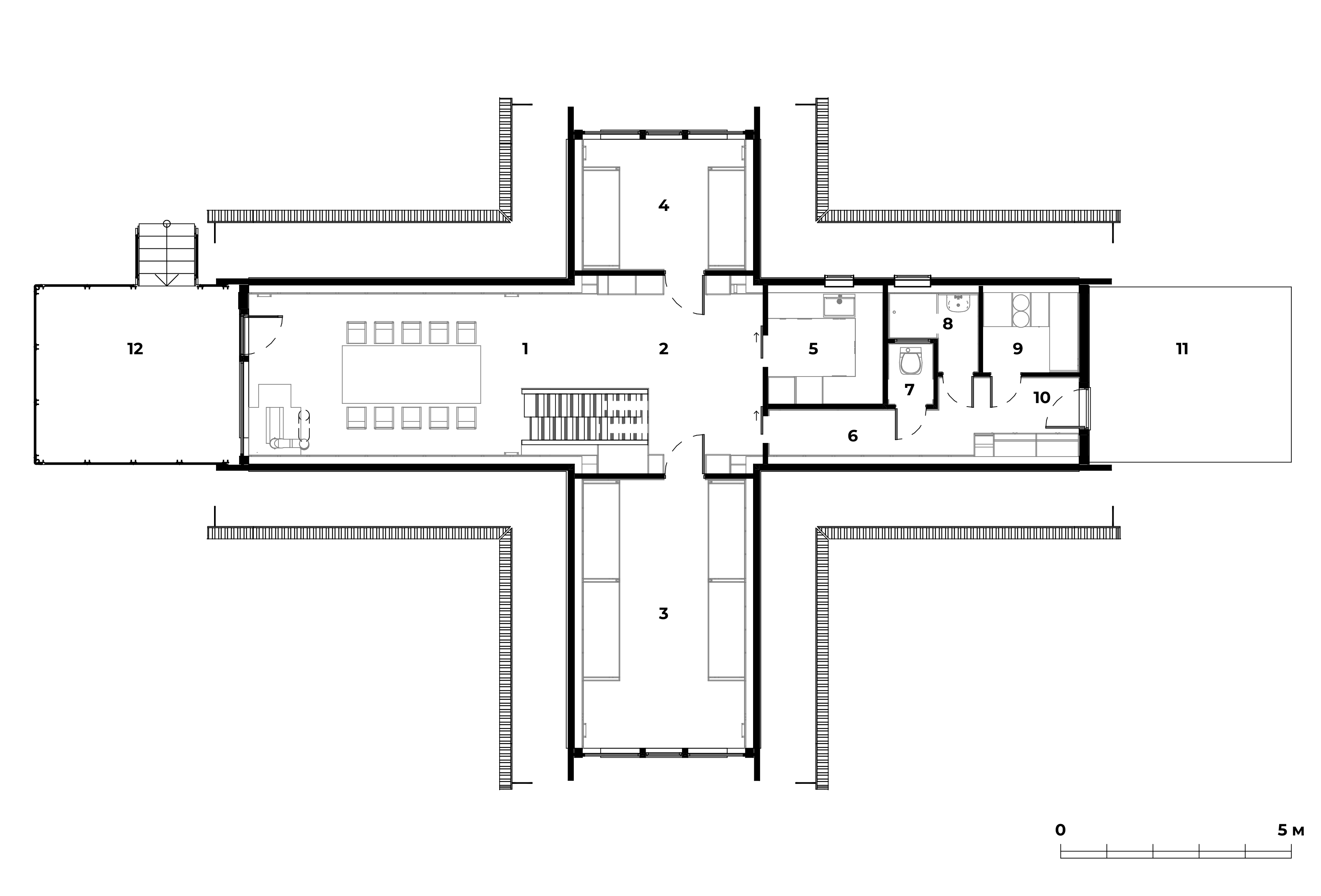
Экспликация

  • 1. Столовая/общая зона 2. Холл 3. Жилое помещение №1 4. Жилое помещение №2 5. Кухня 6. Коридор 7. Санузел 8. Душевая 9. Хозяйственная комната 10. Сушильный шкаф/прихожая 11. Терраса 12. Терраса

Интерьер приюта в горах для охотников выполнен с акцентом на функциональность, долговечность и автономность. В отделке использованы исключительно натуральные и износостойкие материалы, подчеркивающие связь с природой. Вся мебель выполнена по индивидуальному проекту из влагостойкой фанеры.

Особенностью пространства стали трансформируемые тканевые кровати, которые можно регулировать по высоте и количеству в зависимости от числа проживающих. Продуманные встроенные решения — рундуки, лесенки, а также подвижные 12-вольтовые розетки — обеспечивают удобство и мобильность обитания.

Кухонная зона построена на основе готовых кемперских решений, что делает её компактной и функциональной. Вся система жизнеобеспечения приюта основана на автономной энергетике, позволяя находиться в гармонии с природой, сохраняя при этом комфорт и технологичность.

Заказать проект
Мы свяжемся с вами

Остались вопросы?

Отправляя форму, Вы даёте согласие на обработку своих персональных данных и соглашаетесь с политикой обработки персональных данных.

Отправляя данную форму, Вы соглашаетесь с политикой конфиденциальности.