icon-arrow icon-close icon-cs icon-error icon-fb icon-insta icon-logo1 icon-logo2 icon-logo3-white icon-logo3 icon-marker icon-share icon-whatsup icon-youtube select__icon

Павильон «Офис продаж с лекторием и кафе»

Общая площадь 655 м²
Первый этаж 440 м²
Террасы и балконы 426 м²
Технология FACHWERK, КДК
ГАП Екатерина Цветкова
Ведущий архитектор Мария Кондратенко
ГИП Максим Тормышев
Конструкторская группа Артур Полквой, Сергей Шахмин, Арлен Нурбеков

Двухэтажное здание в современном стиле с клееными несущими деревянными конструкциями. КДК видны на фасадах и в интерьере. Уникальность проекту придают свободные свесы кровли длиной более 4-х метров без дополнительных опор и подкосов. При этом регион строительства накладывает значительные ветровые нагрузки.
Основную нагрузку принимают КД стропила сечением 280х560(h) с шагом 5400 мм. Дополнительную жесткость конструкции придают рядовые стропила сечением 160х440(h) с шагом 750 мм. Лобовая планка так же выполнена из КД сечением 80х400(h) и фиксирует между собой стропила на карнизном свесе.

Награды:

655 м² Площадь дома
500 м² Площадь застройки
418 м² Полезная площадь
6831 м³ Строительный объём
1 этаж

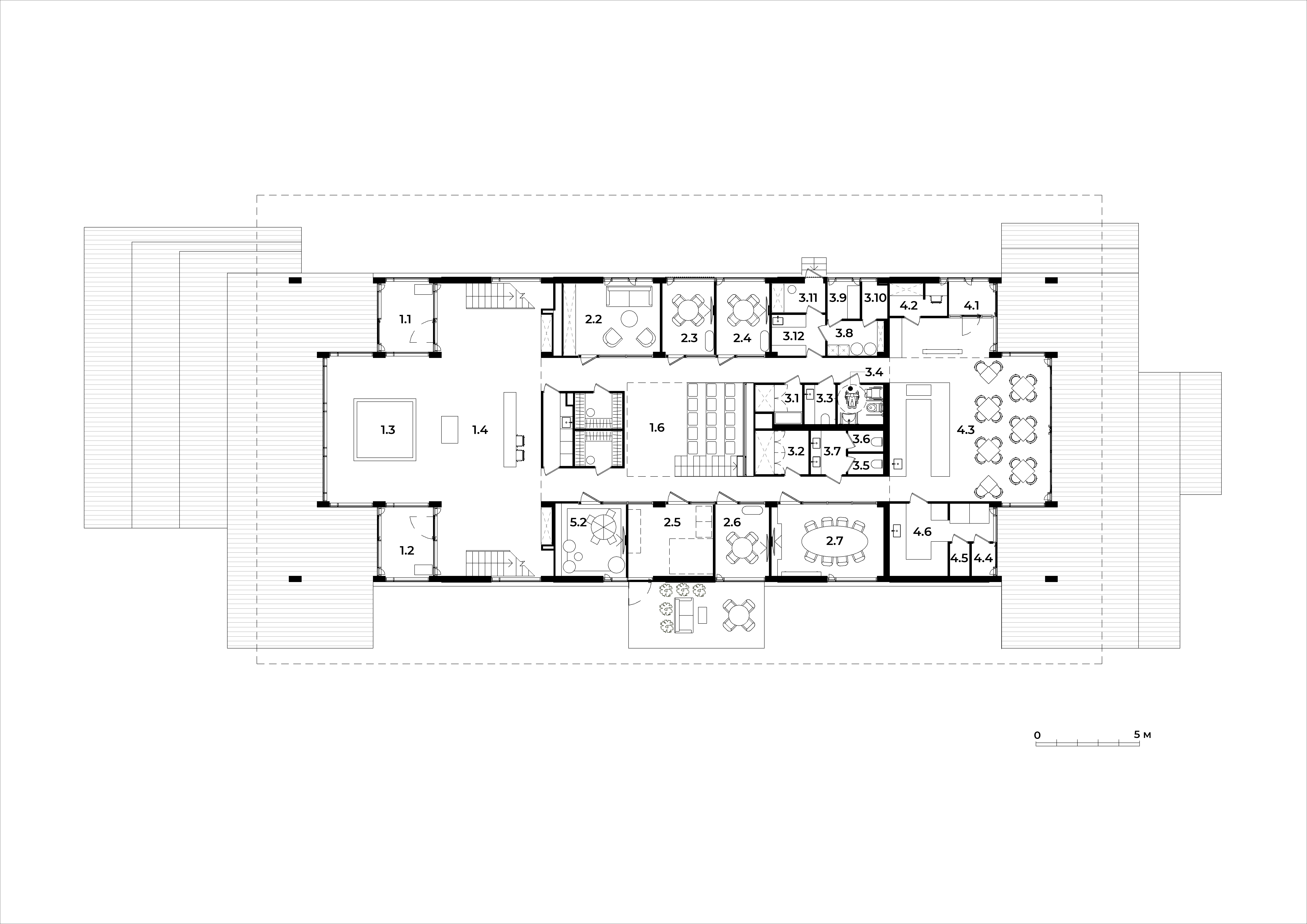
Экспликация

  • 1.1 Тамбур 1.2 Тамбур 1.3 Зона макета 1.4 Вестибюль 1.5 Ниша обслуживания 1.6 Лекторий 2.1 Гардероб 2.2 Зона ожидания 2.3 Переговорная комната 2.4 Переговорная комната 2.5 Технорум 2.6 Переговорная комната 2.7 Большая переговорная комната 3.1 ПУИ 3.2 Кладовая 3.3 Санузел 3.4 Санузел МГН 3.5 Санузел 3.6 Санузел 3.7 Зона размещения раковин 3.8 Техническое помещение 3.9 Электрощитовая 3.10 Помещение водомерного узла 3.11 Гардероб персонала 3.12 Комната персонала 4.1 Тамбур 4.2 Комната персонала 4.3 Кофейня 4.4 Тамбур 4.5 Склад 4.6 Кухня 5.1 Гардероб 5.2 Детская комната
Заказать проект
Мы свяжемся с вами

Остались вопросы?

Отправляя форму, Вы даёте согласие на обработку своих персональных данных и соглашаетесь с политикой обработки персональных данных.

Отправляя данную форму, Вы соглашаетесь с политикой конфиденциальности.