icon-arrow icon-close icon-cs icon-error icon-fb icon-insta icon-logo1 icon-logo2 icon-logo3-white icon-logo3 icon-marker icon-share icon-whatsup icon-youtube select__icon

Проект бани в Долине Лефкадия

Общая площадь 332 м²
Террасы и балконы 45 м²
ГАП Алексей Олещенко
Ведущий архитектор Екатерина Цветкова
ГИП Максим Раяпу, Александр Маринин

Здание общественного банного комплекса двухэтажное с двумя отдельными объёмами кедровой и керамичнской парной.

Материалы конструкций:
Несущие конструкции 1 этажа — внешние и внутренние стены из керамического блока 300 мм. Так же в уровне первого этажа здание имеет две пристройки: парную из кедрового бруса (угловое соединение «в чашу») и керамическую парную. Стены второго этажа из клееного профилированного бруса 190х190 мм. Угловое соединение бруса «city-угол». Внутренние перегородки первого этажа из керамических блоков 120 мм. Крышу формируют стропила — деревянные клееные сечением 85х200(h) мм невидимые. Кровля — двойной стоячий фальц с наружним водостоком.

Конструкция террасы выполнена из клееного бруса: колонны сечением 190х190 мм, балки — 190х420. Оконные и дверные блоки индивидуального изготовления из деревянного профиля с заполнением двукамерными стеклопакетами.

332 м² Площадь дома
398 м² Площадь застройки
287 м² Полезная площадь
2985 м³ Строительный объём
1 этаж

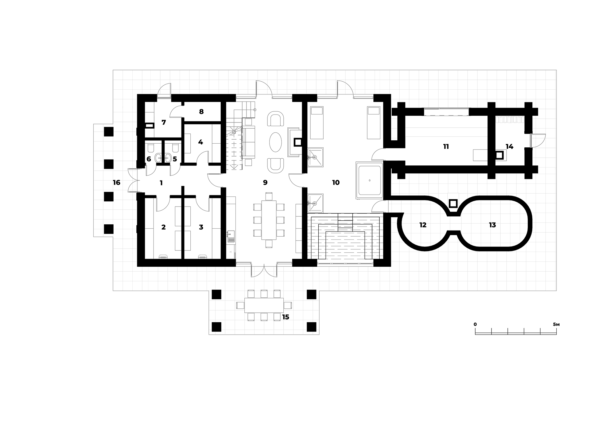
Экспликация

  • 1. Холл 2. Раздевалка женская 3. Раздевалка мужская 4. Помещение персонала 5. Санузел 6. Санузел 7. Техническое помещение 8. Техническое помещение 9. Гостевой зал 10. Помещение водных процедур 11. Кедровая парная 12. Помещение для прогрева 13. Керамическая парная 14. Топочная/дровник 15. Терраса 16. Крыльцо

На визуализации представлена камерная зона отдыха в гостевом пространстве банного комплекса. Интерьер решён в современном стиле с тёплой, расслабляющей атмосферой: мягкие природные оттенки, дерево в отделке пола и обилие живых растений создают ощущение уюта и связи с природой. Высокие потолки и второй свет усиливают ощущение воздуха и простора, а акцентная люстра с латунными элементами придаёт интерьеру лёгкую элегантность. Лестница с лаконичным дизайном и графичная картина на стене добавляют современности.

Заказать проект
Мы свяжемся с вами

Остались вопросы?

Отправляя форму, Вы даёте согласие на обработку своих персональных данных и соглашаетесь с политикой обработки персональных данных.

Отправляя данную форму, Вы соглашаетесь с политикой конфиденциальности.