icon-arrow icon-close icon-cs icon-error icon-fb icon-insta icon-logo1 icon-logo2 icon-logo3-white icon-logo3 icon-marker icon-share icon-whatsup icon-youtube select__icon

Проект глэмпинга «Krasnaya Polyana»

Общая площадь 41,5 м²
Технология CLT, фахверк, каркас (по запросу)
Автор концепции Алексей Олещенко
Фотограф/фото Визуализации: Chiaroscuro Studio

Этот одноуровневый глэмп L-образной формы создан как пространство для уединённого отдыха и полного погружения в природный ландшафт Красной Поляны. Архитектурная композиция строится вокруг каскада террас и просторной веранды, которые становятся естественным продолжением внутреннего пространства и формируют зону отдыха на открытом воздухе.

41,5 м² Площадь дома
93,6 м² Площадь застройки
27,4 м² Полезная площадь
205 м³ Строительный объём
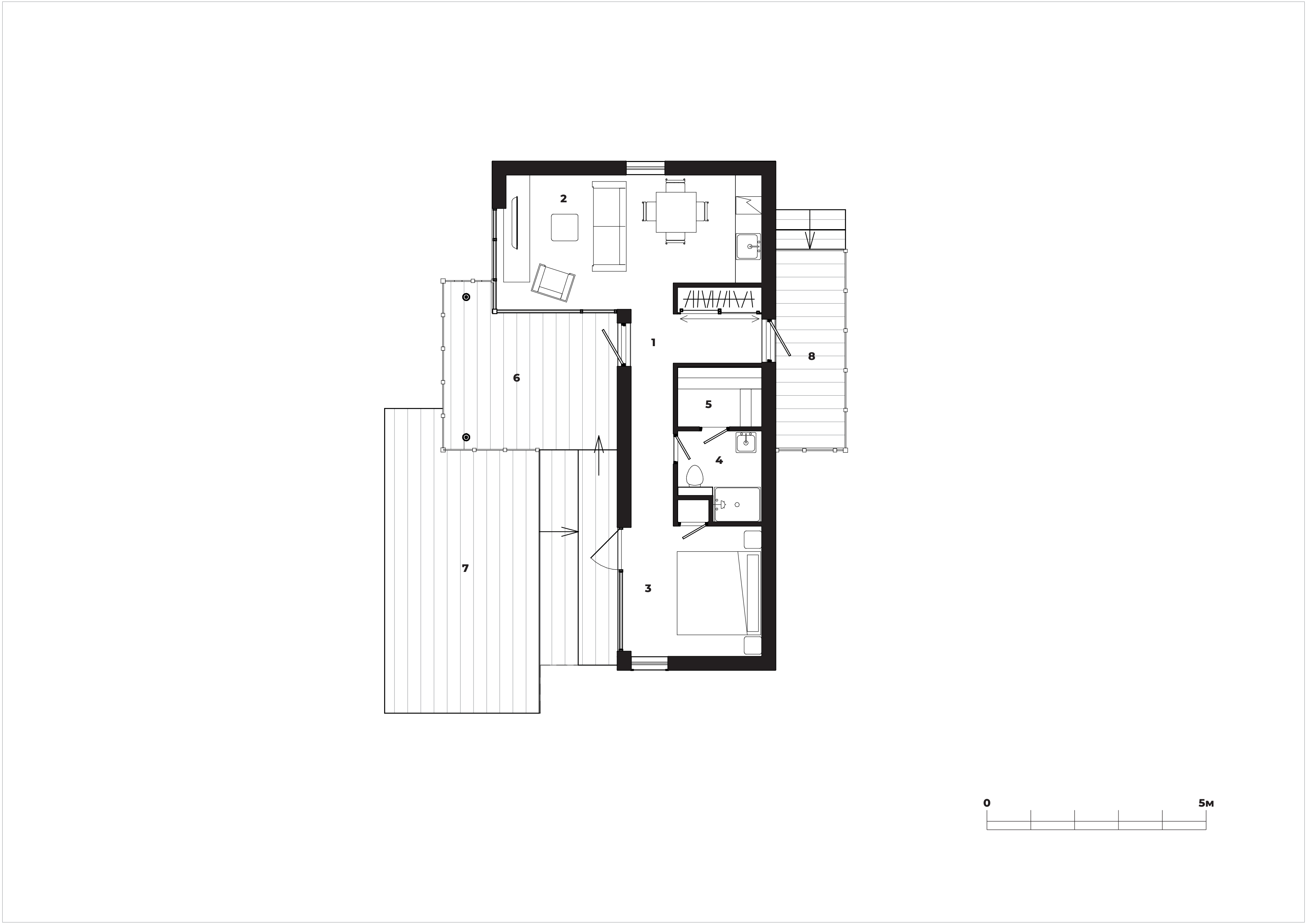
План

Экспликация

  • 1. Коридор 2. Кухня-гостиная 3. Спальня 4. Санузел 5. Сауна 6. Терраса 7. Терраса 8. Терраса

Внутреннее пространство организовано по принципу открытой планировки с акцентом на воздух, свет и визуальный контакт с природой. Центральное место занимает объединённая кухня-гостиная с панорамными окнами и выходом на террасу.
По желанию проект может быть дополнен камином в гостиной — как архитектурным акцентом интерьера и источником особой атмосферы уюта в горном климате.

Интерьер предполагает использование натуральных материалов, спокойной природной палитры и тактильных фактур, усиливающих ощущение приватного премиального retreat-пространства.

Заказать проект
Мы свяжемся с вами

Остались вопросы?

Отправляя форму, Вы даёте согласие на обработку своих персональных данных и соглашаетесь с политикой обработки персональных данных.

Отправляя данную форму, Вы соглашаетесь с политикой конфиденциальности.