icon-arrow icon-close icon-cs icon-error icon-fb icon-insta icon-logo1 icon-logo2 icon-logo3-white icon-logo3 icon-marker icon-share icon-whatsup icon-youtube select__icon

Проект элитного жилого комплекса в Мещерском

Общая площаль 358,58 м²
Террасы и балконы 118,55 м²
Технология FACHWERK 3.0, КЛЕЕНЫЙ БРУС 3.0
Автор концепции Алексей Олещенко
ГАП Алексей Олещенко
Ведущий архитектор Екатерина Цветкова
ГИП Тарас Джигурда
Конструкторская группа Александр Маринин
Фотограф/фото Алексей Народицкий

Этот дом расположен рядом с легендарным Городком писателей — местом, где когда-то создавались лучшие произведения русской литературы. Архитекторы стремились сохранить дух эпохи, поэтому дом в Переделкино выполнен в стиле дач 30-х годов XX века. Он выглядит как часть исторического пейзажа, но внутри скрывает современные технологии и комфорт. По заданию заказчика дом в Переделкино сочетает аутентичные детали и инженерные решения нового поколения. В отделке архитекторы использовали деревянные наличники, мелкоштучные ограждения и аккуратную раскладку рисунка. Благодаря этому дом в Переделкино выглядит уютно и естественно, словно он стоит здесь уже много лет.

Конструктив выполнен по принципу безусадочного фахверка. Каркас заполнен клеёным профилированным брусом, что обеспечивает прочность и долговечность. Угловые колонны большого сечения поддерживают конструкцию, а профилированный брус натянут канатами — это придаёт дому дополнительную устойчивость. Внутренние перегородки мы сделали двойными и изолированными, чтобы исключить передачу звука между спальнями.

Высота профилированного бруса — 250 × 90 мм — была изготовлена специально для этого проекта. Квадратная фаска создает эффект деревянной вагонки, но при этом стена остаётся цельнодеревянной. Для внутренней отделки использован фальшбрус с таким же профилем, что создаёт цельный и гармоничный образ.

Перед монтажом мы сделали браширование всех элементов и окрашены маслом Adler в оттенок состаренного дерева. Окна и двери — специального изготовления, со скрытой фурнитурой и белыми рамками. На фасаде нет металлических элементов: даже отливы и капельники выполнены из дерева. Деревянный цоколь завершает композицию, объединяя дом и террасу в единое архитектурное решение.

Такой дом в Переделкино соединяет эстетику старинных дач и современные технологии деревянного домостроения, оставаясь уютным, тёплым и по-настоящему живым.

358,58 м² Площадь дома
403,98 м² Площадь застройки
240,03 м² Полезная площадь
1472,2 м³ Строительный объём
1 этаж

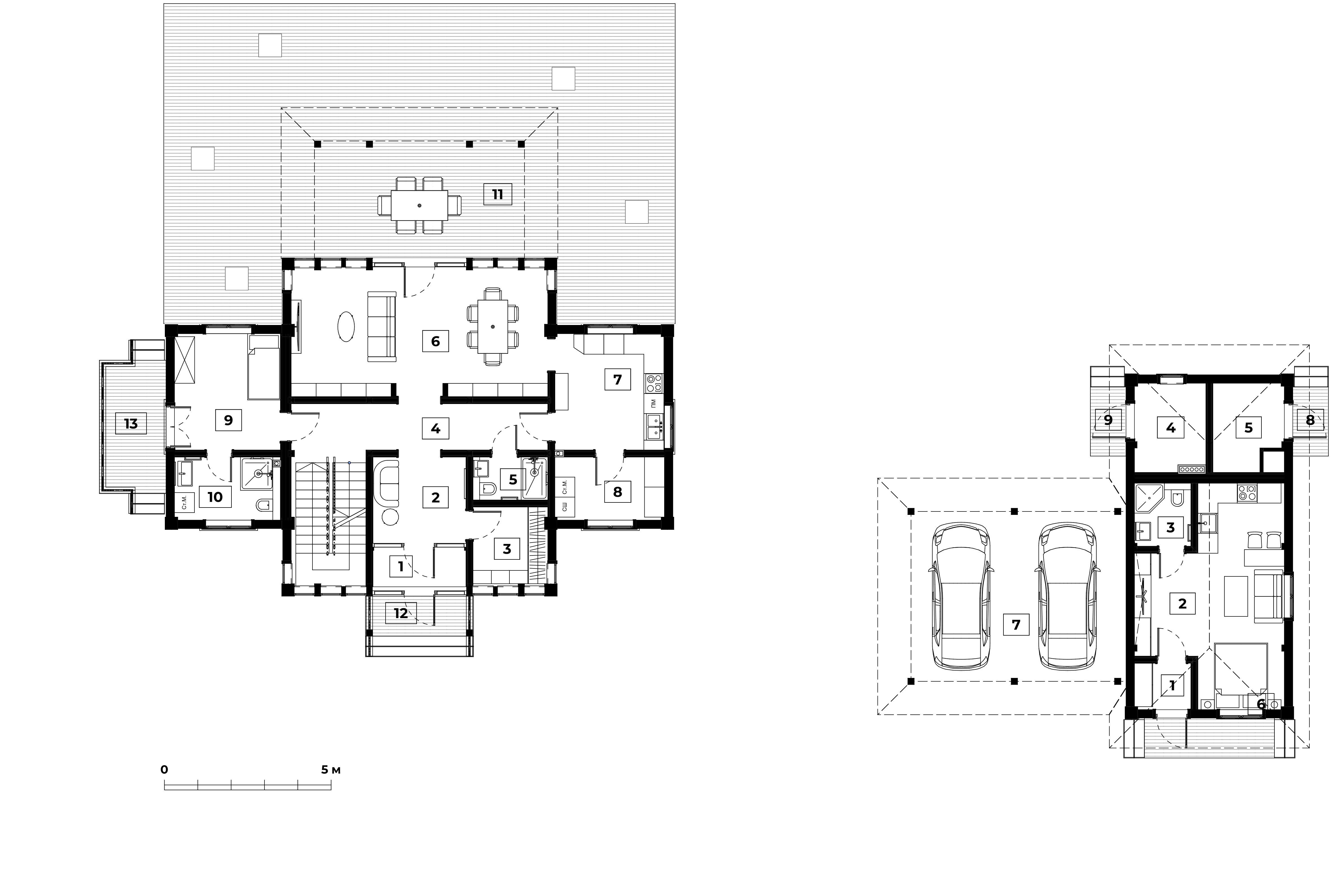
Экспликация

  • Жилой дом 1 этаж: 1. Тамбур 2. Прихожая 3. Гардероб 4. Холл 5. Санузел 6. Гостиная 7. Кухня 8. Кладовая 9. Спальня 10. Санузел 11. Терраса 12. Крыльцо 13. Терраса

Стиль кантри прослеживается в использовании натуральных материалов, таких как дерево и камень, в отделке фасада и террасы. Деревянная обшивка стен, балки и перила создают уютную и теплую атмосферу, характерную для сельских домов.

Открытая терраса с деревянным настилом и плетеной мебелью является типичным элементом загородных домов в стиле кантри. Она создает дополнительное пространство для отдыха и наслаждения природой.

Наличие большого количества зелени, в том числе деревьев, кустарников и газона, подчеркивает близость к природе и создает спокойную и умиротворяющую обстановку.

Высокие потолки и большие окна, пропускающие много естественного света, также характерны для фермерских домов. Они создают ощущение простора и связи с окружающей средой.

Использование светлых и нейтральных оттенков в экстерьере, таких как белый, бежевый и серый, придает дому свежесть и элегантность, не отвлекая внимание от природной красоты вокруг.

Заказать проект
Мы свяжемся с вами

Остались вопросы?

Отправляя форму, Вы даёте согласие на обработку своих персональных данных и соглашаетесь с политикой обработки персональных данных.

Отправляя данную форму, Вы соглашаетесь с политикой конфиденциальности.