icon-arrow icon-close icon-cs icon-error icon-fb icon-insta icon-logo1 icon-logo2 icon-logo3-white icon-logo3 icon-marker icon-share icon-whatsup icon-youtube select__icon

Проект дома персонала в Николино

Общая площадь 113,9 м²
Технология CLT
Автор концепции Алексей Олещенко
ГАП Алексей Олещенко
Архитектурная группа Екатерина Цветкова, Мария Кондратенко
ГИП Тарас Джигурда
Конструкторская группа Артур Полквой
Фотограф/фото Константин Антипин / Алексей Народицкий

Дом персонала в Николино спроектирован как полноценное и комфортное жильё для сотрудников, обеспечивающих функционирование частной усадьбы. При этом он сохраняет архитектурную связь с главным домом и гармонично вписан в природный ландшафт.

В доме предусмотрены спальня для семейной пары, постоянно проживающей на участке, две отдельные комнаты для приходящего персонала, кабинет управляющего и просторные помещения общего пользования. Так, сотрудники могут не только работать, но и отдыхать. Планировочная структура разработана так, чтобы разделить бытовые и рабочие зоны. Благодаря этому персонал получает комфортные условия при этом остаётся в непосредственной близости к основным объектам усадьбы.

Главный фасад дома персонала обращён на запад. Это решение обеспечивает приватность и не нарушает видовые характеристики основной резиденции, которая расположена на востоке участка. Большие панорамные окна наполняют помещения естественным светом.  Также мы добавили зенитные фонари, которые делают интерьер особенно светлым и просторным даже в пасмурную погоду. Само здание построено из панелей CLT — современного экологичного материала, который обеспечивает прочность и энергоэффективность. Дом персонала в Николино стал вторым в России проектом, полностью выполненным из CLT-панелей, и первым с утеплённым фасадом. Иначе говоря, при строительстве были опробованы новые технологии монтажа и транспортировки панелей. Все элементы конструкции имеют ширину до 2 400 мм, что позволило оптимизировать доставку и сборку на участке. Такой опыт стал важным шагом в развитии деревянного домостроения.

113,9 м² Площадь дома
145,80 м² Площадь застройки
372,2 м² Полезная площадь
570 м³ Строительный объём
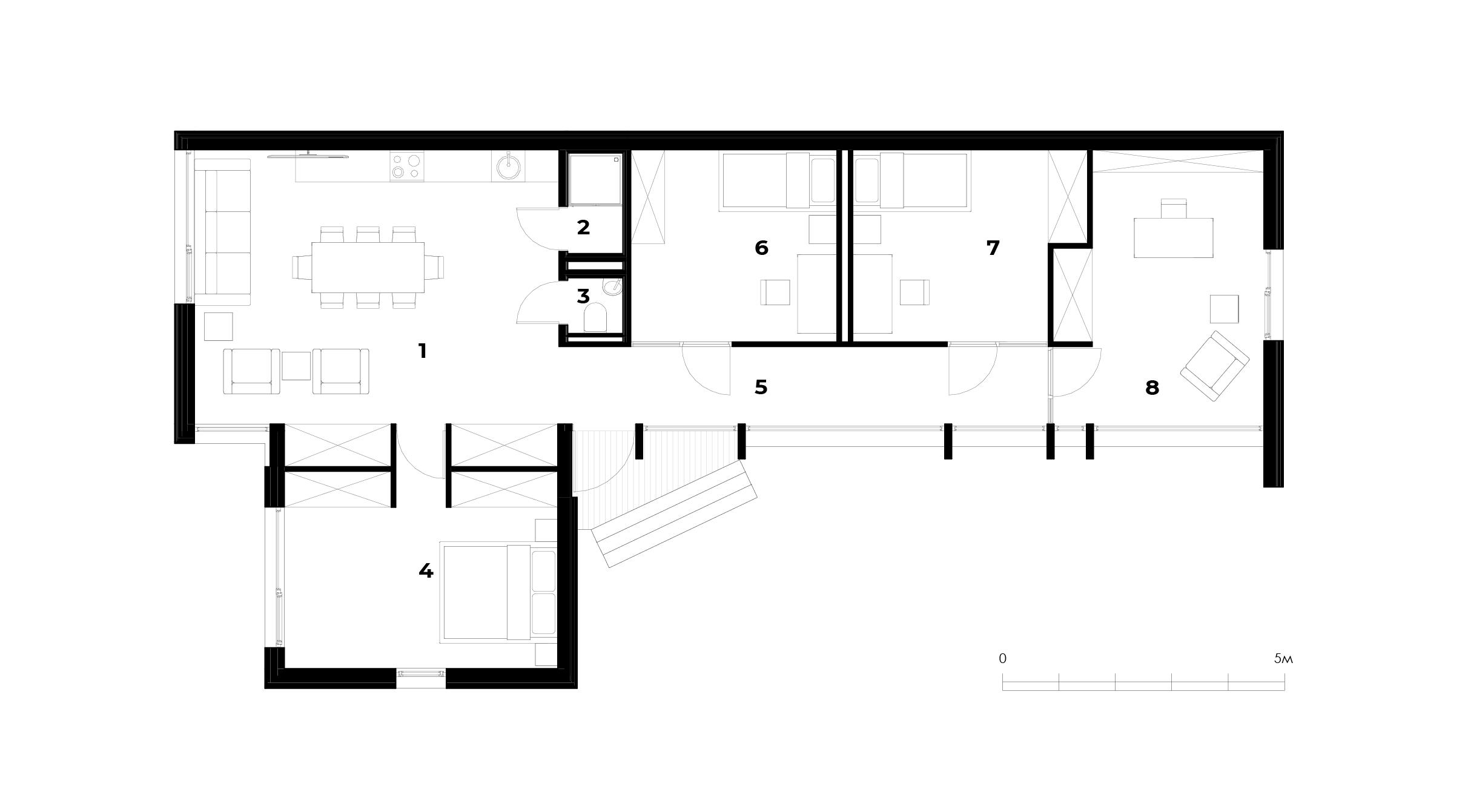
План

Экспликация

  • 1. Общая комната 2. Душевая 3. Санузел 4. Спальня 5. Коридор 6. Спальня 7. Спальня 8. Кабинет управляющего
Заказать проект
Мы свяжемся с вами

Остались вопросы?

Отправляя форму, Вы даёте согласие на обработку своих персональных данных и соглашаетесь с политикой обработки персональных данных.

Отправляя данную форму, Вы соглашаетесь с политикой конфиденциальности.